Property
Beds
3
Full Baths
2
1/2 Baths
None
Year Built
1989
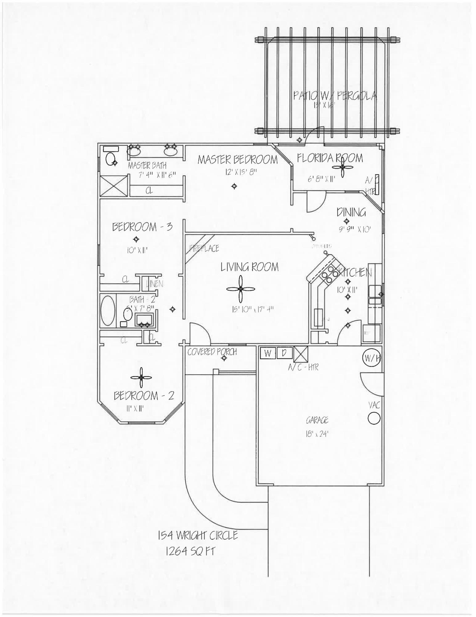
Sq.Footage
1,264
Sitting pretty on a large, private lot in a quiet neighborhood is a meticulously maintained home with style and charm. A thoughtful floor plan allows for living large. Tasteful hues throughout the home complement the refreshingly attractive finishes and appointments. Hardwood floors are the base for the living room accented with vaulted ceiling and fireplace. The floor plan allows for the cook to be in the center of activity with the kitchen and dining area fully open to the living room. Quartz counters and breakfast bar invite you to sit, Outside you'll be delighted by the pergola and large privacy fenced back yard with a variety of ornamental trees mixed with nature. All landscaping is xeriscape themed for ease of maintenance. Just minutes to beaches, bases, fine dining and shopping
Features & Amenities
Interior
-
Other Interior Features
Breakfast Bar, Vaulted Ceiling(s)
-
Total Bedrooms
3
-
Bathrooms
2
-
Cooling YN
YES
-
Cooling
Ceiling Fan(s), Central Air, Window Unit(s)
-
Heating YN
YES
-
Heating
Electric, Central
-
Pet friendly
N/A
Exterior
-
Garage
Yes
-
Garage spaces
2
-
Construction Materials
Vinyl Siding
-
Parking
Garage Door Opener, Attached
-
Patio and Porch Features
Patio
-
Pool
No
Area & Lot
-
Lot Features
Level
-
Property Type
Residential
-
Property Sub Type
Single Family Residence
-
Architectural Style
Traditional
Price
-
Sales Price
$229,900
-
Zoning
Resid Single Family
-
Sq. Footage
1, 264
-
Price/SqFt
$181
HOA
-
Association
YES
-
Association Fee
$128
-
Association Fee Frequency
Annually
-
Association Fee Includes
N/A
School District
-
Elementary School
Bluewater
-
Middle School
Choice-Destin/Ruckel
-
High School
Niceville
Property Features
-
Stories
1
-
Sewer
Public Sewer
Schedule a Showing
Showing scheduled successfully.
Mortgage calculator
Estimate your monthly mortgage payment, including the principal and interest, property taxes, and HOA. Adjust the values to generate a more accurate rate.
Your payment
Principal and Interest:
$
Property taxes:
$
HOA fees:
$
Total loan payment:
$
Total interest amount:
$
Location
County
Okaloosa
Elementary School
Bluewater
Middle School
Choice-Destin/Ruckel
High School
Niceville
Listing Courtesy of Jan Pollen , Coldwell Banker Realty
RealHub Information is provided exclusively for consumers' personal, non-commercial use, and it may not be used for any purpose other than to identify prospective properties consumers may be interested in purchasing. All information deemed reliable but not guaranteed and should be independently verified. All properties are subject to prior sale, change or withdrawal. RealHub website owner shall not be responsible for any typographical errors, misinformation, misprints and shall be held totally harmless.
Agent / Realtor®
TaylorLabno
Call Taylor today to schedule a private showing.
* Listings on this website come from the FMLS IDX Compilation and may be held by brokerage firms other than the owner of this website. The listing brokerage is identified in any listing details. Information is deemed reliable but is not guaranteed. If you believe any FMLS listing contains material that infringes your copyrighted work please click here to review our DMCA policy and learn how to submit a takedown request.© 2024 FMLS.